Mörigen

Die Gemeinde Mörigen ist durch folgende Verbandsanlagen angeschlossen:

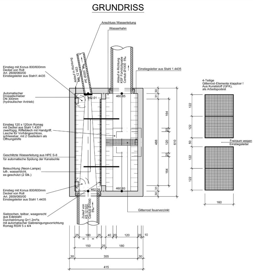
- Eine Mischabwasserleitung führt von Mörigen ab Kontrollschacht Nr. 12'001 bei der Kreuzung Brunnacker-/Lerchenbergstrasse bis zum Kontrollschacht Nr. 25'001 in Sutz-Lattrigen. Diese Leitung wird bei der Hochwasserentlastung Unterdorfstrasse (HE Nr. 12'401) von einem Anteil Regenwasser entlastet. Das entlastete Abwasser fliesst durch eine automatische Siebrechenanlage in den Fürhölzligraben. Der ca. 2-fache Trockenwetteranfall fliesst weiter nach Sutz-Lattrigen.

- Die Siedlung unterhalb der Hauptstrasse wird durch Gemeindeleitungen bis zum Regenüberlaufbecken Strandboden (RÜB Nr. 12'421) des VKA entwässert. Da werden die Mischabwasseranteile durch eine automatische Siebrechenanlage in den Hürligraben entlastet und der 2-fache Trockenwetteranfall zum Verbandspumpwerk Brüggliäcker (PW Nr. 12'431) geleitet.

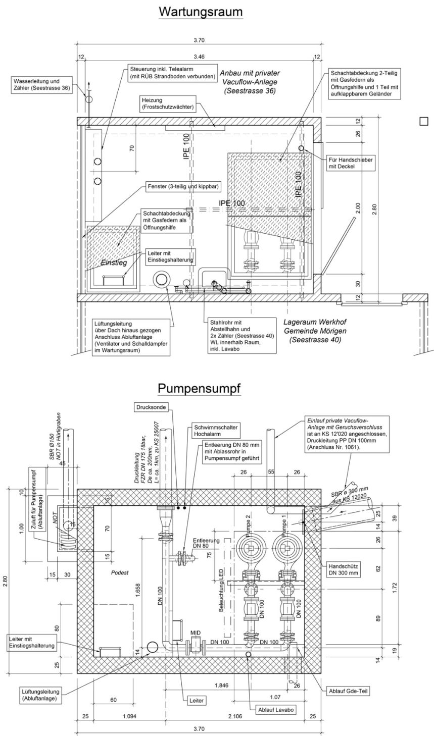
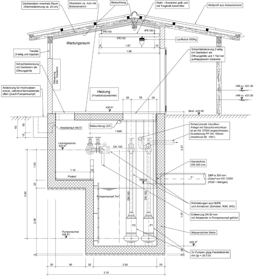
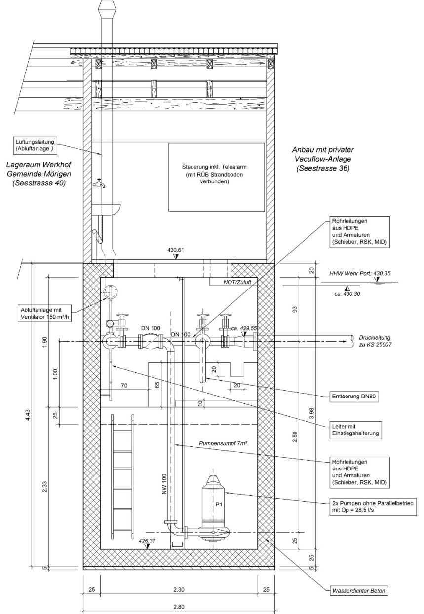
- Das Pumpwerk Brüggliäcker (PW Nr. 12'431) fördert das Abwasser durch die lange Verbands-Druckleitung zum Kontrollschacht Nr. 25'007 in der Kantonsstrasse, nahe beim Alchisgraben (Gewerbezone Lattrigen). An diesem Pumpwerk sind auch Liegenschaften entlang dem Seerain Sutz-Lattrigen mittels einer privaten Vacuflow-Anlage angeschlossen.

An den VKA-Verbandsleitungen, welche durch die Baugebiete der Verbandsgemeinden führen, können auch Liegenschaftsentwässerungen direkt angeschlossen werden. Diese direkten Privatanschlüsse müssen durch den VKA genehmigt und den Bestimmungen des Verbandes entsprechen. Die Anschlussarbeiten dürfen ausschliesslich nur durch die vom VKA bestimmte Unternehmung erstellt werden.

Fürhölzli-/Hürligraben

Das Fliessgewässer nennt sich "Fürhölzligraben" von der Quelle bis zur Kantonstrasse. Abwärts bis zum Einlauf in den Bielersee heisst der Bachlauf dann "Hürligraben".

Infolge der Entlastungen von der Hochwasserentlastung Unterdorfstrasse und vom Regenüberlaufbecken Standboden in den Hürligraben, ist der VKA zu 50% am Oberflächengewässer beteiligt. Wasserbaupflichtig ist die Standortgemeinde Mörigen.

Das erste Teilstück des Ausbauprojektes Hürligraben vom Bielersee bis zu den Liegenschaften Seebodenweg wurde im Jahr 2016 ausgeführt.

PW Brüggliäcker

Mörigen PW Brüggliäcker

Mörigen HE

Mörigen HE

Strandboden

Mörigen Strandboden

© 2018 VKA, Ringstrasse 8, Portmoos, 2560 Nidau - Tel. 076 525 17 32, E-Mail: info@vka-nidau.ch

Alle Rechte vorbehalten. Bitte lesen Sie die "Allgemeinen rechtlichen Hinweise, Datenschutz" bevor Sie diese Website weiter benützen

 
Hinweis zur Verwendung von Cookies. Um unsere Webseite für Sie optimal zu gestalten und fortlaufend verbessern zu können, verwenden wir Cookies. Durch die weitere Nutzung der Webseite stimmen Sie der Verwendung von Cookies zu. Weitere Informationen hierzu erhalten Sie in unseren  Datenschutzinformationen