Ipsach

Die Gemeinde Ipsach ist durch folgende Verbandsanlagen angeschlossen:

- Der Hauptsammelkanal Mörigen-ARA führt vom Kürzegraben (Schacht Nr. 53'442) bis zum Herdiweg entlang dem Bahntrassee ASm. Ab diesem Punkt führen 2 Parallel-Leitungen das Mischabwasser quer durch das Quartier zur Moosstrasse und entlang dieser Strasse bis zur Seestrasse. In der Kreuzung Moos-/Seestrasse münden beide Leitungen im Trennbauwerk (TBW Nr. 34'474). Der Regenwetteranfall wird da vom ca. 2-fachen Trockenwetteranfall getrennt und entlang der Seestrasse bis zum Regenüberlaufbecken (RÜB Nr. 34'424) geleitet. Der Hauptsammelkanal führt ab der Kreuzung Moos-/Seestrasse weiter parallel dem Bahntrassee ASm bis zur Gemeinde Nidau.

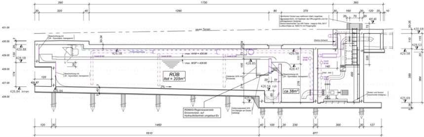
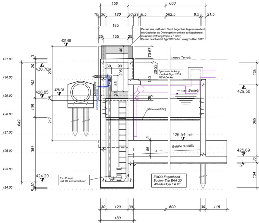
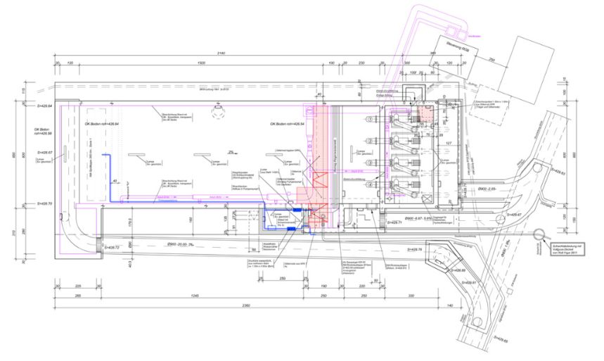
- Das Regenüberlaufbecken Ipsach (RÜB Nr. 34'424) mit automatischer Siebrechenanlage behandelt das Überlaufabwasser vom TBW Nr. 34'474, bevor es zur Auslassleitung Seestrasse in den Bielersee gepumpt wird. Das direkt angeschlossene Pumpwerk (PW Nr. 33'434) ist für die Förderung des entlasteten Abwassers zuständig.

- Die Hangleitung Bellmund kommt im Gebiet Rebenrain nach Ipsach. Sie führt durch den Rebenrain, die Dorfstrasse zur Kantonsstrasse und entlang dieser Strasse bis nach Nidau. Auf diesem Weg sind nicht nur die Gemeindeleitungen, sondern auch die privaten Liegenschaftsentwässerungen an die Hangleitung angeschlossen. Es ist deshalb eine Hauptleitung im Abwasserentsorgungsnetz der Gemeinde Ipsach.

- Ab der Hochwasserentlastung Herdi führt die Entlastungsleitung des VKA entlang der Keltenstrasse zum Regenrückhaltebecken (RRB Nr. 32'423). Das Regenrückhaltebecken Herdi hat die Aufgabe, den Abwasseranfall derart zu drosseln, dass das angeschlossene Pumpwerk Nr. 32'433 die Entlastung zum Kürzegraben ohne Spitzenabfluss bewältigen kann.

An den VKA-Verbandsleitungen, welche durch die Baugebiete der Verbandsgemeinden führen, können auch  Liegenschaftsentwässerungen direkt angeschlossen werden. Diese direkten Privatanschlüsse müssen durch den VKA genehmigt und den Bestimmungen des Verbandes entsprechen. Die Anschlussarbeiten dürfen ausschliesslich nur durch die vom VKA bestimmte Unternehmung erstellt werden.

RüB / PW Seestrasse

Ipsach Seestrasse Standort

RüB Herdi

Ipsach Herdi Standort

© 2018 VKA, Ringstrasse 8, Portmoos, 2560 Nidau - Tel. 076 525 17 32, E-Mail: info@vka-nidau.ch

Alle Rechte vorbehalten. Bitte lesen Sie die "Allgemeinen rechtlichen Hinweise, Datenschutz" bevor Sie diese Website weiter benützen

 
Hinweis zur Verwendung von Cookies. Um unsere Webseite für Sie optimal zu gestalten und fortlaufend verbessern zu können, verwenden wir Cookies. Durch die weitere Nutzung der Webseite stimmen Sie der Verwendung von Cookies zu. Weitere Informationen hierzu erhalten Sie in unseren  Datenschutzinformationen